
11
East Sheen Avenue 2, East Sheen. Rear Extension and roof extension with total refurbishment

14
East Sheen Avenue 2, Sheen, Drawings
10
Wolseley Gardens, Grove Park, W4. Rear extension and roof extension.

17
Wolseley Gardens, Grove Park, W4. Drawings

5
Elm Park Gardens 2 Chelsea, Internal receonfiguration and refurbishment

6
Elm Park Gardens 2 Chelsea, Drawings

7
The Retreat, Barnes. Roof & Side Infill Extensions

12
The Retreat, Barnes. Drawings

5
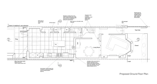
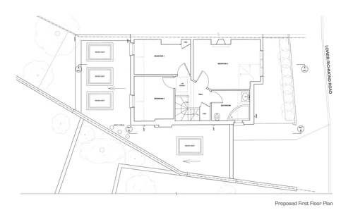
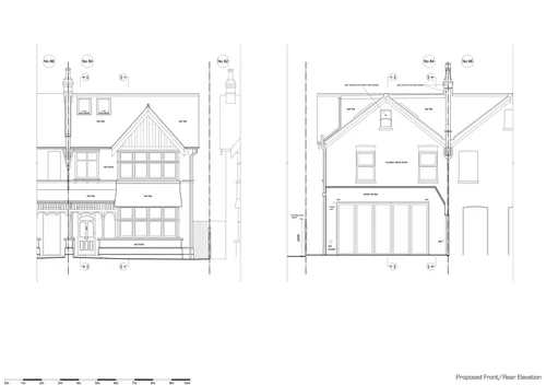
Lower Richmond Road, Mortlake, Rear Extension and Conversion of Garage

14
Lower Richmond Road, Mortlake, Drawings
6
Harberson Road, Balham. Side Infill Extension

12
Harberson Road, Balham. Drawings

5
Elm Park Gardens, Chelsea. Internal Refurbishment

6
Elm Park Gardens, Chelsea. Drawings

4
Howgate Road, Mortlake. Rear wraparound extension

8
Howgate Road, Mortlake. Drawings
4
Somerton Avenue, Sheen, Rear Extension

9
Somerton Avenue, Sheen, Rear Extension Drawings

4
Greenside Road, Hammersmith. Rear Lower Ground Floor Extension

8
Greenside Road, Hammersmith. Drawings

5
Lewin Road, East Sheen, Rear Extension of Two Houses, House 1

4
Lewin Road, East Sheen, Rear Extension of Two Houses, House 2

13
Lewin Road, East Sheen, Drawings

5
East Sheen Avenue, East Sheen. Rear and side infill extension

14
East Sheen Avenue, East Sheen. Drawings
5
Percy Road, Hammersmith. Rear roof extension and refurbishment

12
Percy Road, Hammersmith. Drawings
